Allgemeine Infos
Flächen im Detail
Technische Details
Kaufpreis Wohnung:
zzgl. Preis pro Stellplatz
ab € 27.000,-zzgl. Grunderwerbssteuer:
3,5 %zzgl. Grundbucheintragung:
zzgl. Nebenkosten:
1,2 % Vertrags- und TreuhandkostenWohnbauförderung:
Monatliche Kreditrate
Infos zum Projekt
Das Projekt
- Mehrfamilienhaus mit 15 Eigentumswohnungen
- Bezugsfertige 2-, 3- und 4-Zimmerwohnungen
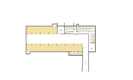
- Tiefgarage mit 20 PKW- und 2 Motorrad-Stellplätzen
Die Bauweise
- Massivbauweise
- Lasierte hinterlüftete Holzfassade
- Extensiv begrüntes Dach
- Holzfenster und Rahmentüren mit 3-fach-Isolierverglasung
Die solide Bauweise ist uns als traditionelles Bauunternehmen besonders wichtig. Denn sie ist das Fundament, damit Sie lange Freude mit Ihrer Wohnung haben. Einen kurzen Überblick der Bauweise haben wir für Sie zusammengestellt.
Die Ausstattung
Neben der durchdachten Planung und soliden Bauweise legen wir besonderes Augenmerk auf die Ausstattung der Wohnungen. Natürliche Materialien wie Echtholz oder Feinsteinzeug und hochwertige Sanitärausstattung namhafter Hersteller bieten wir Ihnen als Grundausstattung in verschiedenen Ausführungen und farblichen Nuancierungen an.
Unsere Berater:innen stehen Ihnen fachkundig zur Seite und zeigen Ihnen die ausgewählten Materialmuster. Ausstellungskojen bei unseren regionalen Partnern für Sanitärausstattung machen unsere Bad- und WC-Ausstattung bereits als Musterraum ausgebaut erlebbar.
Sie haben Wünsche abseits unserer Grundausstattung? Dann stehen Ihnen unsere Handwerks-Partner selbstverständlich auch direkt beratend zur Verfügung.
Und die Küche? Auch hier haben wir bereits Vorarbeit geleistet und einen Küchenplan für Sie ausgearbeitet. Auf Wunsch können Sie diesen direkt mit unserem Küchenpartner umsetzen.
Die Lage
Die zentrale Lage im Rheintal macht Hohenems zu einer begehrten Wohngegend. Sie punktet mit einer umfassenden Infrastruktur und hat in den letzten Jahren als Wohnstadt enorm an Attraktivität gewonnen.
Mit viel Gespür wurde die Innenstadt weiterentwickelt: Begegnungszonen vom Schlossplatz über das Jüdische Viertel und die Marktstraße bringen Flair; charmante kleine Geschäfte, Restaurants und Cafés laden zum Flanieren ein. Das in den nächsten Jahren entstehende Rathaus-Quartier wird diese Entwicklung fortführen.
Die junge Stadt bietet beste Infrastruktur: Von Kinderbetreuung über unterschiedliche Schultypen bis hin zur ärztlichen Versorgung, die durch das Krankenhaus ergänzt wird. Auch kulturell zählt die durch den Palast und den Schlossplatz geprägte Stadt zu den Highlights in Vorarlberg: Schubertiade, Homunculus oder das Eventcenter bieten ein vielfältiges Angebot.
Naherholung liegt hier zentral im Rheintal mit dem Schlossberg, Schuttannen oder dem alten Rhein und Vorarlbergs größtem Schwimmbad quasi vor der Haustüre. Zudem bietet ein bestens ausgebautes Radwegenetz, der Autobahnanschluss, die Nähe zur Schweizer Grenze und die fußläufige Erreichbarkeit des Bahnhofs hohe Mobilität.
Download Projektexposé
Infos zum Projekt
- Mehrfamilienhaus mit 15 Eigentumswohnungen
- Bezugsfertige 2-, 3- und 4-Zimmerwohnungen
- Tiefgarage mit 20 PKW- und 2 Motorrad-Stellplätzen
- Massivbauweise
- Lasierte hinterlüftete Holzfassade
- Extensiv begrüntes Dach
- Holzfenster und Rahmentüren mit 3-fach-Isolierverglasung
Die solide Bauweise ist uns als traditionelles Bauunternehmen besonders wichtig. Denn sie ist das Fundament, damit Sie lange Freude mit Ihrer Wohnung haben. Einen kurzen Überblick der Bauweise haben wir für Sie zusammengestellt.
Neben der durchdachten Planung und soliden Bauweise legen wir besonderes Augenmerk auf die Ausstattung der Wohnungen. Natürliche Materialien wie Echtholz oder Feinsteinzeug und hochwertige Sanitärausstattung namhafter Hersteller bieten wir Ihnen als Grundausstattung in verschiedenen Ausführungen und farblichen Nuancierungen an.
Unsere Berater:innen stehen Ihnen fachkundig zur Seite und zeigen Ihnen die ausgewählten Materialmuster. Ausstellungskojen bei unseren regionalen Partnern für Sanitärausstattung machen unsere Bad- und WC-Ausstattung bereits als Musterraum ausgebaut erlebbar.
Sie haben Wünsche abseits unserer Grundausstattung? Dann stehen Ihnen unsere Handwerks-Partner selbstverständlich auch direkt beratend zur Verfügung.
Und die Küche? Auch hier haben wir bereits Vorarbeit geleistet und einen Küchenplan für Sie ausgearbeitet. Auf Wunsch können Sie diesen direkt mit unserem Küchenpartner umsetzen.
Die zentrale Lage im Rheintal macht Hohenems zu einer begehrten Wohngegend. Sie punktet mit einer umfassenden Infrastruktur und hat in den letzten Jahren als Wohnstadt enorm an Attraktivität gewonnen.
Mit viel Gespür wurde die Innenstadt weiterentwickelt: Begegnungszonen vom Schlossplatz über das Jüdische Viertel und die Marktstraße bringen Flair; charmante kleine Geschäfte, Restaurants und Cafés laden zum Flanieren ein. Das in den nächsten Jahren entstehende Rathaus-Quartier wird diese Entwicklung fortführen.
Die junge Stadt bietet beste Infrastruktur: Von Kinderbetreuung über unterschiedliche Schultypen bis hin zur ärztlichen Versorgung, die durch das Krankenhaus ergänzt wird. Auch kulturell zählt die durch den Palast und den Schlossplatz geprägte Stadt zu den Highlights in Vorarlberg: Schubertiade, Homunculus oder das Eventcenter bieten ein vielfältiges Angebot.
Naherholung liegt hier zentral im Rheintal mit dem Schlossberg, Schuttannen oder dem alten Rhein und Vorarlbergs größtem Schwimmbad quasi vor der Haustüre. Zudem bietet ein bestens ausgebautes Radwegenetz, der Autobahnanschluss, die Nähe zur Schweizer Grenze und die fußläufige Erreichbarkeit des Bahnhofs hohe Mobilität.












