
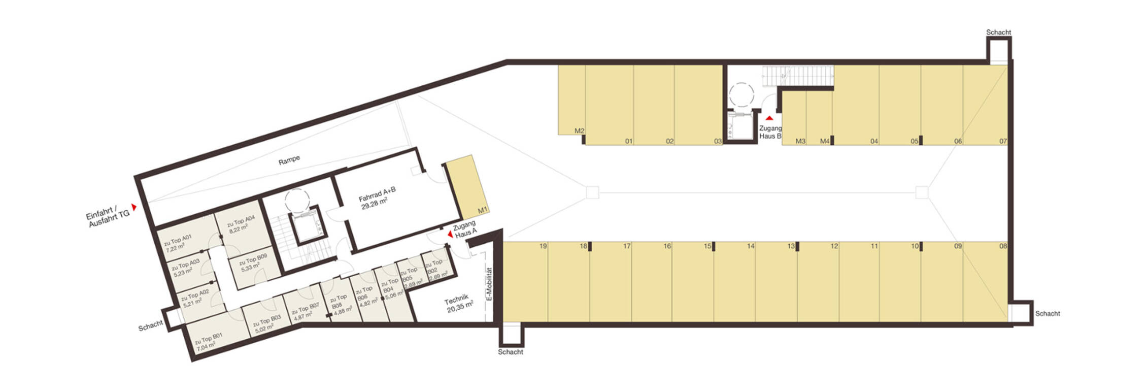
Allgemeine Infos
Flächen im Detail
Technische Details
Kaufpreis Wohnung:
zzgl. Preis pro Stellplatz
ab € 27.000,-zzgl. Grunderwerbssteuer:
3,5 %zzgl. Grundbucheintragung:
zzgl. Nebenkosten:
1,2% Vertrags- und TreuhandkostenInfos zum Projekt
Das Projekt
- Zwei Mehrfamilienhäuser mit drei Geschossen
- 13 Eigentumswohnungen
- 2-, 3- und 4-Zimmerwohnungen
- Großzügige Terrassen und Privatgärten bzw. innenliegende Balkone
Die Bauweise
- Massivbauweise
- Lasierte, hinterlüftete Holzfassade
- Holzfenster und Rahmentüren mit 3-fach-Isolierverglasung
Die solide Bauweise ist uns als traditionelles Bauunternehmen besonders wichtig. Denn sie ist das Fundament, damit Sie lange Freude mit Ihrer Wohnung haben. Einen kurzen Überblick der Bauweise haben wir für Sie zusammengestellt.
Die Ausstattung
Neben der durchdachten Planung und soliden Bauweise legen wir besonderes Augenmerk auf die Ausstattung der Wohnungen. Natürliche Materialien wie Echtholz oder Feinsteinzeug und hochwertige Sanitärausstattung namhafter Hersteller bieten wir Ihnen als Grundausstattung in verschiedenen Ausführungen und farblichen Nuancierungen an.
Unsere Berater:innen stehen Ihnen fachkundig zur Seite und zeigen Ihnen die ausgewählten Materialmuster. Ausstellungskojen bei unseren regionalen Partnern für Sanitärausstattung machen unsere Bad- und WC-Ausstattung bereits als Musterraum ausgebaut erlebbar.
Sie haben Wünsche abseits unserer Grundausstattung? Dann stehen Ihnen unsere Handwerks-Partner selbstverständlich auch direkt beratend zur Verfügung.
Und die Küche? Auch hier haben wir bereits Vorarbeit geleistet und einen Küchenplan für Sie ausgearbeitet. Auf Wunsch können Sie diesen direkt mit unserem Küchenpartner umsetzen.
Die Lage
Die beiden Baukörper des Wohnprojekts entstehen in ruhiger Lage in Frastanz. Die sonnige Lage, die gute Infrastruktur und die Nähe zur Montfortstadt Feldkirch sind besondere Vorzüge dieser Marktgemeinde. Ob zu Fuß oder mit dem Bike bieten die umliegenden Ortsteile vielfältige Erlebnisse in der Natur. Wer gerne am Wasser unterwegs ist, dem steht die nahe Ill mit bestens ausgebauten Rad- und Wanderwegen zur Verfügung.
Sie schätzen ein breites Kulturangebot von klassisch bis hipp? Zur guten Wohnlage trägt bei, dass die Stadt Feldkirch nur fünf Kilometer entfernt ist. Zahlreiche Cafés und Restaurants sowie diverse Geschäfte laden hier zum Genießen und Bummeln ein.
Download Projektexposé
Infos zum Projekt
- Zwei Mehrfamilienhäuser mit drei Geschossen
- 13 Eigentumswohnungen
- 2-, 3- und 4-Zimmerwohnungen
- Großzügige Terrassen und Privatgärten bzw. innenliegende Balkone
- Massivbauweise
- Lasierte, hinterlüftete Holzfassade
- Holzfenster und Rahmentüren mit 3-fach-Isolierverglasung
Die solide Bauweise ist uns als traditionelles Bauunternehmen besonders wichtig. Denn sie ist das Fundament, damit Sie lange Freude mit Ihrer Wohnung haben. Einen kurzen Überblick der Bauweise haben wir für Sie zusammengestellt.
Neben der durchdachten Planung und soliden Bauweise legen wir besonderes Augenmerk auf die Ausstattung der Wohnungen. Natürliche Materialien wie Echtholz oder Feinsteinzeug und hochwertige Sanitärausstattung namhafter Hersteller bieten wir Ihnen als Grundausstattung in verschiedenen Ausführungen und farblichen Nuancierungen an.
Unsere Berater:innen stehen Ihnen fachkundig zur Seite und zeigen Ihnen die ausgewählten Materialmuster. Ausstellungskojen bei unseren regionalen Partnern für Sanitärausstattung machen unsere Bad- und WC-Ausstattung bereits als Musterraum ausgebaut erlebbar.
Sie haben Wünsche abseits unserer Grundausstattung? Dann stehen Ihnen unsere Handwerks-Partner selbstverständlich auch direkt beratend zur Verfügung.
Und die Küche? Auch hier haben wir bereits Vorarbeit geleistet und einen Küchenplan für Sie ausgearbeitet. Auf Wunsch können Sie diesen direkt mit unserem Küchenpartner umsetzen.
Die beiden Baukörper des Wohnprojekts entstehen in ruhiger Lage in Frastanz. Die sonnige Lage, die gute Infrastruktur und die Nähe zur Montfortstadt Feldkirch sind besondere Vorzüge dieser Marktgemeinde. Ob zu Fuß oder mit dem Bike bieten die umliegenden Ortsteile vielfältige Erlebnisse in der Natur. Wer gerne am Wasser unterwegs ist, dem steht die nahe Ill mit bestens ausgebauten Rad- und Wanderwegen zur Verfügung.
Sie schätzen ein breites Kulturangebot von klassisch bis hipp? Zur guten Wohnlage trägt bei, dass die Stadt Feldkirch nur fünf Kilometer entfernt ist. Zahlreiche Cafés und Restaurants sowie diverse Geschäfte laden hier zum Genießen und Bummeln ein.











