Allgemeine Infos
Flächen im Detail
Technische Details
Kaufpreis Wohnung:
zzgl. Preis pro Stellplatz
ab € 27.000,-zzgl. Grunderwerbssteuer:
3,5 %zzgl. Grundbucheintragung:
zzgl. Nebenkosten:
1,2% Vertrags- und TreuhandkostenWohnbauförderung:
Infos zum Projekt
Wohnquartier Am Römerstein
- Bezugsfertige Eigentumswohnungen mit möglicher Wohnbauförderung
- Parkähnliche Außenraumgestaltung mit Quartiersplatz und Spielflächen
- Naturnahes Wohnen
- Hochwertige Architektur: Jesco Hutter, Dornbirn
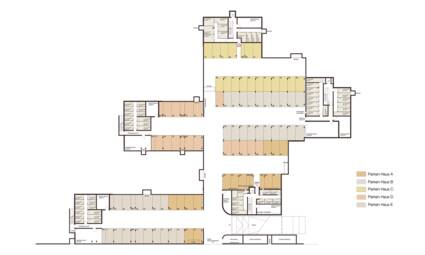
Die Wohnhäuser A, B und C mit 3-Zimmer-Eigentumswohnungen, in gewohnter i+R Qualität, sind umgeben von einer parkähnlichen Außenraumgestaltung und im hinteren Teil des Wohnquartiers situiert.
In dem Wohnhaus D befinden 3-Zimmer-Eigentumswohnungen mit dem Wohnkonzept i+R wohnen pur.
Die Bauweise
- Massivbauweise
- Lasierte, hinterlüftete Holzfassade
- Holzfenster und Rahmentüren mit 3-fach-Isolierverglasung
Die solide Bauweise ist uns als traditionelles Bauunternehmen besonders wichtig. Denn sie ist das Fundament, damit Sie lange Freude mit Ihrer Wohnung haben. Einen kurzen Überblick der Bauweise haben wir für Sie zusammengestellt.
Die Ausstattung
Neben der durchdachten Planung und soliden Bauweise legen wir besonderes Augenmerk auf die Ausstattung der Wohnungen. Natürliche Materialien wie Echtholz oder Feinsteinzeug und hochwertige Sanitärausstattung namhafter Hersteller bieten wir Ihnen als Grundausstattung in verschiedenen Ausführungen und farblichen Nuancierungen an.
Die Lage
Die Gemeinde Höchst, am Bodensee gelegen, kann mit ihrer ruhigen und naturnahen Lage als beliebtes Wohngebiet punkten. Das Rheindelta gehört zu einem der wichtigsten Vogelschutzgebiete und Feuchtgebiete Europas. Gleichzeitig stellt es ein Naturparadies dar, auf dem sich Auenwälder, Schilfbereiche und Sandbänke erstrecken. Auch das nahgelegene Bruggerloch bietet Erholung und Aktivität zugleich, egal ob beim Schwimmen, Angeln oder Relaxen – Höchst ist die ideale Wohnlage für alle, die in der Natur zu Hause sind.
Mit nur 750 Metern zur Schweizer Grenze und zahlreichen renommierten Unternehmen wie Blum, Grass oder Tecnoplast zeigt sich Höchst auch in Punkt Wirtschaft attraktiv. Die Nähe zur Landesstraße 202 sowie zur Bruggerstraße in Richtung Lustenau macht Höchst von allen Seiten gut erreichbar. Ein gut ausgebautes Radwegenetz sowie der Landbus stehen zudem zur Verfügung. Auch eine Illwerke Charing Station für e-Mobilität ist in unmittelbarer Nähe.
Download Projektexposé
Infos zum Projekt
Wohnquartier Am Römerstein
- Bezugsfertige Eigentumswohnungen mit möglicher Wohnbauförderung
- Parkähnliche Außenraumgestaltung mit Quartiersplatz und Spielflächen
- Naturnahes Wohnen
- Hochwertige Architektur: Jesco Hutter, Dornbirn
Die Wohnhäuser A, B und C mit 3-Zimmer-Eigentumswohnungen, in gewohnter i+R Qualität, sind umgeben von einer parkähnlichen Außenraumgestaltung und im hinteren Teil des Wohnquartiers situiert.
In dem Wohnhaus D befinden 3-Zimmer-Eigentumswohnungen mit dem Wohnkonzept i+R wohnen pur.
- Massivbauweise
- Lasierte, hinterlüftete Holzfassade
- Holzfenster und Rahmentüren mit 3-fach-Isolierverglasung
Die solide Bauweise ist uns als traditionelles Bauunternehmen besonders wichtig. Denn sie ist das Fundament, damit Sie lange Freude mit Ihrer Wohnung haben. Einen kurzen Überblick der Bauweise haben wir für Sie zusammengestellt.
Neben der durchdachten Planung und soliden Bauweise legen wir besonderes Augenmerk auf die Ausstattung der Wohnungen. Natürliche Materialien wie Echtholz oder Feinsteinzeug und hochwertige Sanitärausstattung namhafter Hersteller bieten wir Ihnen als Grundausstattung in verschiedenen Ausführungen und farblichen Nuancierungen an.
Die Gemeinde Höchst, am Bodensee gelegen, kann mit ihrer ruhigen und naturnahen Lage als beliebtes Wohngebiet punkten. Das Rheindelta gehört zu einem der wichtigsten Vogelschutzgebiete und Feuchtgebiete Europas. Gleichzeitig stellt es ein Naturparadies dar, auf dem sich Auenwälder, Schilfbereiche und Sandbänke erstrecken. Auch das nahgelegene Bruggerloch bietet Erholung und Aktivität zugleich, egal ob beim Schwimmen, Angeln oder Relaxen – Höchst ist die ideale Wohnlage für alle, die in der Natur zu Hause sind.
Mit nur 750 Metern zur Schweizer Grenze und zahlreichen renommierten Unternehmen wie Blum, Grass oder Tecnoplast zeigt sich Höchst auch in Punkt Wirtschaft attraktiv. Die Nähe zur Landesstraße 202 sowie zur Bruggerstraße in Richtung Lustenau macht Höchst von allen Seiten gut erreichbar. Ein gut ausgebautes Radwegenetz sowie der Landbus stehen zudem zur Verfügung. Auch eine Illwerke Charing Station für e-Mobilität ist in unmittelbarer Nähe.
Kontakt
Die Wohnungen werden über uns oder unseren Partner im Vertrieb Gassner Immobilien in Höchst (provisionsfrei) vermittelt und verkauft.












