Dornbirn I Schwefel 100

Bürofläche an Top-Standort
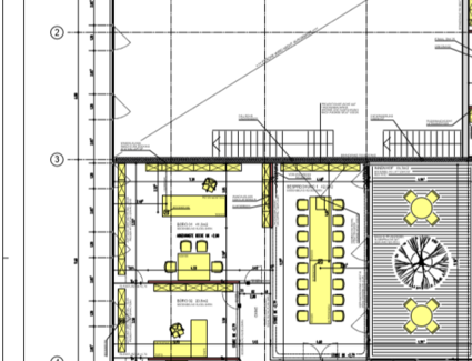
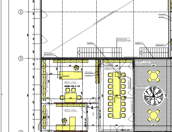
Die Bürofläche im Obergeschoss verfügt über bereits ausgebaute, 170 m² lichtdurchflutete Einzelbüros sowie über eine 175 m² große Fläche im noch unausgebauten Zustand, welche Ihren Anforderungen entsprechend adaptiert werden kann.
Das Obergeschoss ist über einen Lift sowie einen Stiegenaufgang erreichbar. Für Kunden stehen Ihnen direkt beim Objekt Parkplätze zur Verfügung. Der Mietzins richtet sich nach Ausbaugrad und Mietdauer.
Ihre Mitarbeiter können bequem mit den öffentlichen Verkehrsmittel zur Arbeit kommen, da dieses Betriebsgebiet bestens erschlossen ist.










Im Dornbirner Gewerbegebiet Schwefel wurde 2011 dieser großzügige Gebäudekomplex errichtet. Besondere Vorzüge des Objektes liegen in der optimalen Verkehrsanbindung an der L190, nahe dem Autobahnanschluss Dornbirn-Nord, sowie der Anbindung an den Bregenzerwald über die L200.
Gesamthaft gesehen bietet diese moderne Infrastruktur ein attraktives Umfeld, welches ein professionelles Arbeiten ermöglicht und eine hohe Frequenz garantiert.
