Allgemeine Infos
Flächen im Detail
Technische Details
Kaufpreis Wohnung:
zzgl. Preis pro Stellplatz
ab € 27.000,-zzgl. Grunderwerbssteuer:
3,5 %zzgl. Grundbucheintragung:
zzgl. Nebenkosten:
1,2% Vertrags- und TreuhandkostenWohnbauförderung:
Infos zum Projekt
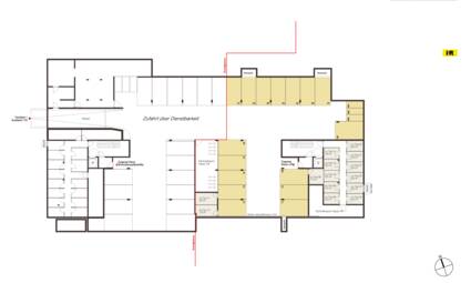
- Die Wohnanlage besteht aus 2 Gebäuden:
- Haus A: 16 gemeinnützige Wohnungen von der Wohnbauselbsthilfe
- Haus B: 14 Eigentumswohnungen von i+R
- Ressourcenschonende Holzbauweise mit hinterlüfteter Holzfassade und extensiver Dachbegrünung
- 2- oder 3-Zimmerwohnungen
- Großzügige Terrassen und Privatgärten mit Blick ins Grüne
- Tiefgarage mit Vorbereitung für E-Ladestationen
- Hochwertige Architektur: Nachbaur Wörter Architekten, Wolfurt
- Attraktive Außenbereiche mit Spielplatz und Grünflächen
- Wohnbauförderung möglich
- Geplante Fertigstellung: Herbst 2026
- Holzbau
- Regeneratives Energiesystem mit Luftwärmepumpe und Photovoltaikanlage
- Holzfenster und Rahmentüren mit 3-fach-Isolierverglasung
- Glasfaseranschluss für schnelles Internet
- Mit dem Lift barrierefrei von der Tiefgarage bis zur Wohnung
Gebaut aus Holz, einem nachwachsenden und ressourcenschonenden Material, steht das Gebäude für einen achtsamen Umgang mit der Umwelt. Holz speichert CO₂ und leistet damit einen wichtigen Beitrag zum Klimaschutz, während es durch seine Stabilität und Langlebigkeit eine solide und wertbeständige Bauweise bietet.
Neben einer sorgfältigen Planung und soliden Bauweise legen wir großen Wert auf die Ausstattung unserer Wohnungen. Zum Einsatz kommen natürliche Materialien wie Echtholz und Feinsteinzeug, ergänzt durch eine hochwertige Sanitärausstattung namhafter Hersteller. Diese Elemente bilden die Grundausstattung und stehen in unterschiedlichen Ausführungen und Farbtönen zur Auswahl.
Dornbirn ist ein wichtiges Wirtschaftszentrum und der mit Abstand größte Arbeitsstandort in Vorarlberg, kein Wunder, dass die Stadt auch zum Wohnen sehr beliebt ist.
Die Wohnanlage im Weidenweg liegt naturnah am Stadtrand von Dornbirn und dennoch mit sehr guter Anbindung an die Bundesstraße und das öffentliche Verkehrsnetz. Der Bahnhof Haselstauden ist beispielsweise in kurzer Zeit zu Fuß erreichbar. Doch auch Einkaufsmöglichkeiten gibt es nahe der Wohnanlage, unteranderem mehrere Supermärkte, Möbel- und Autohäuser. Zur guten Infrastruktur zählen auch Schulen, Kindergärten und Spielplätze in der direkten Umgebung. Das Ried in unmittelbarer Nähe lädt zu schönen Spaziergängen ein.
Download Exposé
Infos zum Projekt
- Die Wohnanlage besteht aus 2 Gebäuden:
- Haus A: 16 gemeinnützige Wohnungen von der Wohnbauselbsthilfe
- Haus B: 14 Eigentumswohnungen von i+R
- Ressourcenschonende Holzbauweise mit hinterlüfteter Holzfassade und extensiver Dachbegrünung
- 2- oder 3-Zimmerwohnungen
- Großzügige Terrassen und Privatgärten mit Blick ins Grüne
- Tiefgarage mit Vorbereitung für E-Ladestationen
- Hochwertige Architektur: Nachbaur Wörter Architekten, Wolfurt
- Attraktive Außenbereiche mit Spielplatz und Grünflächen
- Wohnbauförderung möglich
- Geplante Fertigstellung: Herbst 2026
- Holzbau
- Regeneratives Energiesystem mit Luftwärmepumpe und Photovoltaikanlage
- Holzfenster und Rahmentüren mit 3-fach-Isolierverglasung
- Glasfaseranschluss für schnelles Internet
- Mit dem Lift barrierefrei von der Tiefgarage bis zur Wohnung
Gebaut aus Holz, einem nachwachsenden und ressourcenschonenden Material, steht das Gebäude für einen achtsamen Umgang mit der Umwelt. Holz speichert CO₂ und leistet damit einen wichtigen Beitrag zum Klimaschutz, während es durch seine Stabilität und Langlebigkeit eine solide und wertbeständige Bauweise bietet.
Neben einer sorgfältigen Planung und soliden Bauweise legen wir großen Wert auf die Ausstattung unserer Wohnungen. Zum Einsatz kommen natürliche Materialien wie Echtholz und Feinsteinzeug, ergänzt durch eine hochwertige Sanitärausstattung namhafter Hersteller. Diese Elemente bilden die Grundausstattung und stehen in unterschiedlichen Ausführungen und Farbtönen zur Auswahl.
Dornbirn ist ein wichtiges Wirtschaftszentrum und der mit Abstand größte Arbeitsstandort in Vorarlberg, kein Wunder, dass die Stadt auch zum Wohnen sehr beliebt ist.
Die Wohnanlage im Weidenweg liegt naturnah am Stadtrand von Dornbirn und dennoch mit sehr guter Anbindung an die Bundesstraße und das öffentliche Verkehrsnetz. Der Bahnhof Haselstauden ist beispielsweise in kurzer Zeit zu Fuß erreichbar. Doch auch Einkaufsmöglichkeiten gibt es nahe der Wohnanlage, unteranderem mehrere Supermärkte, Möbel- und Autohäuser. Zur guten Infrastruktur zählen auch Schulen, Kindergärten und Spielplätze in der direkten Umgebung. Das Ried in unmittelbarer Nähe lädt zu schönen Spaziergängen ein.














