Allgemeine Infos
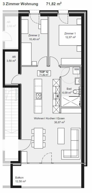
Flächen im Detail
Technische Details
Kaufpreis Wohnung:
zzgl. Preis pro Stellplatz
ab € 27.000,-zzgl. Grunderwerbssteuer:
3,5 %zzgl. Grundbucheintragung:
zzgl. Nebenkosten:
1,2% Vertrags- und TreuhandkostenWohnbauförderung:
Monatliche Kreditrate
Infos zum Projekt
Das Projekt
- Drei Wohnhäuser mit dem Wohnkonzept i+R wohnen pur
- Je 12 Eigentumswohnungen mit 70 bis 74 m²
- Ausgebaut als 3-Zimmerwohnung
- Geräumige Terrassen - im Erdgeschoss mit Privatgärten
- Südwestliche Ausrichtung mit Mittags- und Abendsonne
- Durchdachte, hochwertige Außenraumgestaltung
- Naturnahes Wohnen
- Moderne Architektur: Architekt Jesco Hutter, Dornbirn
- Bezugsfertig
Die Bauweise
- Massivbauweise
- Luftwärmepumpe mit Fußbodenheizung
- Photovoltaik-Anlage
- Lasierte, hinterlüftete Holzfassade
- Holzfenster und Rahmentüren mit 3-fach-Isolierverglasung
- Vorbereitung E-Mobilität
- Tiefgarage
Die Ausstattung
- Raumhohe Türen
- Echtholz-Parkett
- Stilvolle Sanitärausstattung
- Hochwertige Fliesenauswahl
- Bodenebene Dusche inkl. Glastrennwand
- Vertikalscreen südseitig
i+R wohnen pur
Wer lieber kauft statt mietet – auch bei der ersten Wohnung – hat mit wohnen pur den perfekten Start: rund 70 Quadratmeter Raum zum Leben, Lachen und Lieben! Jede wohnen pur-Wohnung bekommst du in drei Ausbauvarianten: als Single-Loft, als zwei- oder drei-Zimmer-Wohnung. Hier kannst du nach deinen Bedürfnissen gestalten und fühlst dich als Single genauso wohl, wie als Paar oder kleine Familie.
Unser Fokus in der Entwicklung des Konzepts lag neben jungem und flexiblem Wohnraum aber auch bei den Kosten: Weglassen, auf was man als junger oder junggebliebener Mensch leicht verzichten kann, nennen wir Kostenintelligenz. Denn damit reduzieren wir nicht nur die Anschaffungskosten sondern auch die späteren Betriebskosten.
Nutze i+R wohnen pur als clevere und sichere Wertanlage – damit dir mehr fürs Leben bleibt.
Die Lage
Die Grafenstadt Hohenems hat viel zu bieten. Die Emser sind stolz auf den markanten Schlossberg mit der Burgruine, der mitten in der Stadt zur Naherholung einlädt. Aber nicht nur der Schlossberg, auch das Bergdorf Reute, das Wander- und Schigebiet Schuttannen, die Alpe Gsohl, der Schwefelberg und die Riedflächen mit dem Flugplatz sind über kurze Wege erreichbar und bieten Natur pur. Der Alte Rhein und das größte Freibad Vorarlbergs, das Rheinauen, versprechen Abkühlung und Erholung.
Das Herz der Stadt bildet der Schlossplatz direkt am historischen Grafenpalast zusammen mit der Marktstraße und dem jüdischen Viertel. Hier wird eine Vielzahl an kulturellen und gesellschaftlichen Veranstaltungen geboten – vom New-Orleans-Festival bis zu klassischen Konzerten. Einzigartig sind hier auch die Einkaufsmöglichkeiten: Feine kleine Geschäfte von Bioläden über Mode und Kulinarisches bis hin zum Kunsthandwerk. Hohenems wird immer mehr zum Geheimtipp für Besonderes.
Die Wohnanlage in der Hellbrunnenstraße ist am nördlichen Rand von Hohenems gelegen - ruhig und doch mit sehr guter Anbindung an die Bundesstraße und das öffentliche Verkehrsnetz. In der Nähe befinden sich ein Lebensmittelgeschäft, Sportbekleidungshandel und ein Gartencenter. Wenige Gehminuten von der Wohnanlage Hellbrunnenstraße entfernt, führt ein schattiger Weg entlang des Schlossberges bis zum Schlossplatz. Westlich der Wohnanlage erstreckt sich das Ried mit seinen Spazier- und Radwegen, die über den Flugplatz nach Dornbirn oder dem Rhein entlang bis zum Bodensee führen.
Download Projektexposé
Infos zum Projekt
- Drei Wohnhäuser mit dem Wohnkonzept i+R wohnen pur
- Je 12 Eigentumswohnungen mit 70 bis 74 m²
- Ausgebaut als 3-Zimmerwohnung
- Geräumige Terrassen - im Erdgeschoss mit Privatgärten
- Südwestliche Ausrichtung mit Mittags- und Abendsonne
- Durchdachte, hochwertige Außenraumgestaltung
- Naturnahes Wohnen
- Moderne Architektur: Architekt Jesco Hutter, Dornbirn
- Bezugsfertig
- Massivbauweise
- Luftwärmepumpe mit Fußbodenheizung
- Photovoltaik-Anlage
- Lasierte, hinterlüftete Holzfassade
- Holzfenster und Rahmentüren mit 3-fach-Isolierverglasung
- Vorbereitung E-Mobilität
- Tiefgarage
- Raumhohe Türen
- Echtholz-Parkett
- Stilvolle Sanitärausstattung
- Hochwertige Fliesenauswahl
- Bodenebene Dusche inkl. Glastrennwand
- Vertikalscreen südseitig
Wer lieber kauft statt mietet – auch bei der ersten Wohnung – hat mit wohnen pur den perfekten Start: rund 70 Quadratmeter Raum zum Leben, Lachen und Lieben! Jede wohnen pur-Wohnung bekommst du in drei Ausbauvarianten: als Single-Loft, als zwei- oder drei-Zimmer-Wohnung. Hier kannst du nach deinen Bedürfnissen gestalten und fühlst dich als Single genauso wohl, wie als Paar oder kleine Familie.
Unser Fokus in der Entwicklung des Konzepts lag neben jungem und flexiblem Wohnraum aber auch bei den Kosten: Weglassen, auf was man als junger oder junggebliebener Mensch leicht verzichten kann, nennen wir Kostenintelligenz. Denn damit reduzieren wir nicht nur die Anschaffungskosten sondern auch die späteren Betriebskosten.
Nutze i+R wohnen pur als clevere und sichere Wertanlage – damit dir mehr fürs Leben bleibt.
Die Grafenstadt Hohenems hat viel zu bieten. Die Emser sind stolz auf den markanten Schlossberg mit der Burgruine, der mitten in der Stadt zur Naherholung einlädt. Aber nicht nur der Schlossberg, auch das Bergdorf Reute, das Wander- und Schigebiet Schuttannen, die Alpe Gsohl, der Schwefelberg und die Riedflächen mit dem Flugplatz sind über kurze Wege erreichbar und bieten Natur pur. Der Alte Rhein und das größte Freibad Vorarlbergs, das Rheinauen, versprechen Abkühlung und Erholung.
Das Herz der Stadt bildet der Schlossplatz direkt am historischen Grafenpalast zusammen mit der Marktstraße und dem jüdischen Viertel. Hier wird eine Vielzahl an kulturellen und gesellschaftlichen Veranstaltungen geboten – vom New-Orleans-Festival bis zu klassischen Konzerten. Einzigartig sind hier auch die Einkaufsmöglichkeiten: Feine kleine Geschäfte von Bioläden über Mode und Kulinarisches bis hin zum Kunsthandwerk. Hohenems wird immer mehr zum Geheimtipp für Besonderes.
Die Wohnanlage in der Hellbrunnenstraße ist am nördlichen Rand von Hohenems gelegen - ruhig und doch mit sehr guter Anbindung an die Bundesstraße und das öffentliche Verkehrsnetz. In der Nähe befinden sich ein Lebensmittelgeschäft, Sportbekleidungshandel und ein Gartencenter. Wenige Gehminuten von der Wohnanlage Hellbrunnenstraße entfernt, führt ein schattiger Weg entlang des Schlossberges bis zum Schlossplatz. Westlich der Wohnanlage erstreckt sich das Ried mit seinen Spazier- und Radwegen, die über den Flugplatz nach Dornbirn oder dem Rhein entlang bis zum Bodensee führen.






















