Hard | Spannrahmenhalle

Spannrahmenhalle

Einzigartige Bürofläche im Dachgeschoss

Mitten in Hard, nur einen Steinwurf vom Ortskern entfernt, steht im Dachgeschoss der Spannrahmenhalle eine großzügige Bürofläche zur Miete zur Verfügung. 

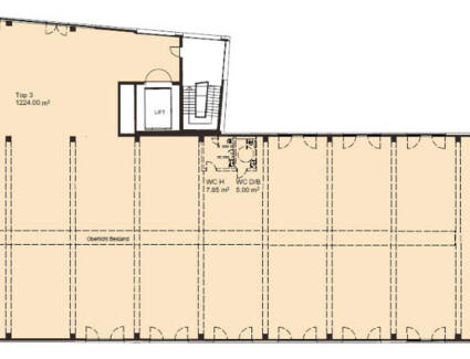
Auf einer außergewöhnlichen Fläche von knapp 1.200 m² bietet das Dachgeschoss Platz für etwa 70 – 80 Arbeitsplätze. Die Räumlichkeit verfügt über ein fertiges Ausbaukonzept zum Selbstausbau und ist bezugsfertig. 

Die überdurchschnittliche Raumhöhe sorgt für ein spektakuläres Ambiente und macht dieses Objekt zu einem seltenen Hingucker. Die sehr gute verkehrstechnische Lage dieses Standorts ist gerade für die gewerbliche Nutzung von großem Vorteil: Der Ortskern sowie das Seeufer ist in wenigen Minuten fußläufig erreichbar. „In der Wirke“ ist an die Landesstraße 202 angebunden – somit ist sowohl Bregenz also auch die Schweizer Grenze direkt erreichbar.

Allgemeine Infos
Stockwerk:
Dachgeschoss (2. OG)
Nutzfläche:
1.196,33 m²
Baujahr:
2016
Verfügbar ab:
sofort
Status:
Neubau (Erstbezug)
Technische Details
Lift:
vorhanden
Heizungsart:
Luftwärmepumpe
Heizwärmebedarf:
25,45 kWh/m²a
Klasse Heizwärmebedarf:
A
Preis auf Anfrage
Lage

Am ehemaligen Wolff-Areal in Hard in unmittelbarer Nähe zum Ortskern entsteht mit dem Projekt „In der Wirke“ ein multifunktionaler Standort, der wohnen, arbeiten und leben miteinander verbindet. Die Kombination von revitalisiertem Altbestand und die hochwertige Architektur der neuen Gebäudekörper sowie die parkähnlich gestalteten Außenräume geben dem Areal einen ganz besonderen Charakter.

Auf dem rund 24.000 m² großen Gelände entstehen neben hochwertigen Büro- und Geschäftsflächen auch Eigentums- und Mietwohnungen, das Haus der Generationen der SeneCura, der neue Gemeindesaal sowie mit dem „In der Wirke-Platz“ und einem Cafe/Restaurant auch ein neuer Treffpunkt in der Marktgemeinde am Bodensee.

Die sehr gute verkehrstechnische Lage dieses Standorts ist gerade für die gewerbliche Nutzung von großem Vorteil: Der Ortskern sowie das Seeufer ist in wenigen Minuten fußläufig erreichbar. „In der Wirke“ ist an die Landesstraße 202 angebunden – somit ist sowohl Bregenz also auch die Schweizer Grenze direkt erreichbar

Karoline Ratz

Immobilienmanagement J+R Immobilien GmbH

Nachricht senden

Karoline Ratz

Immobilienmanagement J+R Immobilien GmbH

Nachricht senden

Karoline Ratz

Immobilienmanagement J+R Immobilien GmbH

Nachricht senden
Avatar Karoline Ratz
Kontakt

Weihnachtsurlaub Wohnbau

Vom 24. Dezember bis 6. Januar machen wir Weihnachtsurlaub. Unser Immobilienverkauf ist in dieser Zeit unter der Nummer +43 5574 6888-2520 für Sie da. Ab 7. Januar sind wir dann wieder wie gewohnt für Sie da.

Wir wünschen Ihnen erholsame Feiertage und für 2026 alles Gute!

Kontakt