Zur Übersicht
Lindau | Rickenbacher Straße

Whg 24

Haus B | Obergeschoss | 4 Zimmer
Rickenbacherstrasse, Lindau, Haus-B-Whg B24

Allgemeine Infos

Spezifikation
Neubau (Erstbezug)
Art des Stellplatzes
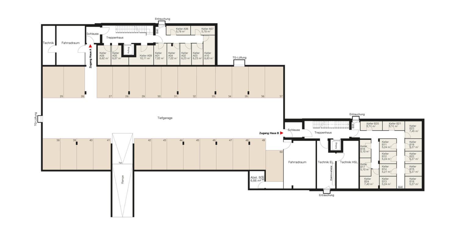
Tiefgarage
Anzahl an Stellplätzen
1

Flächen im Detail

Wohnfläche
105,45 m2
Kochen/Wohnen/Essen
40,86 m2
Schlafzimmer
13,72 m2
Zimmer
11,31 m2
2. Zimmer
10,13 m2
Badezimmer
7,2 m2
Gäste WC
1,28 m2
Flur
9,09 m2
Abstellraum
1,1 m2
Terrasse
32 m2
Keller
7,4 m2

Technische Details

Heizung
Fußboden
Heizungsart
Erdwärme
Energiesystem
Photovoltaik
Kühlung
Freecooling
Lift
vorhanden
Internet
Glasfaser
E-mobility ready
vorhanden

Kaufpreis Wohnung:

€ 799.000,-

zzgl. Grunderwerbsteuer:

3,5 %

zzgl. Grundbuchamt + Notarkosten:

1,5 %

Informationen zur Förderung:

Die Wohnanlage entspricht dem KfW-40-EE-Standard (BEG-EH40). Dadurch sind attraktive KfW-Fördermittel möglich.
Nachricht senden
1

Infos zum Projekt

Eckdaten

  • Zwei Häuser mit insgesamt 24 Wohnungen
  • 2-, 3- und 4-Zimmerwohnungen mit Privatgärten, Balkonen und Dachterrassen
  • Tiefgarage mit Aufzügen direkt bis vor die Wohnungseingangstüre
  • Begrünte Außenanlage mit Spielplatz
  • Geothermie und Photovoltaikanlage
  • Vorbereitung für E-Lade-Infrastruktur
  • Architektur: Feuerstein Hammer Pfeiffer, Lindau (B)
  • Energiestandard "Effizienhaus 40" nach KfW-Standard
  • QNG zertifiziert

Die Ausstattung

  • Echtholzparkett aus Eiche in allen Wohnräumen
  • Fußbodenheizung und -kühlung
  • Holzfensterelemente mit 3-fach-Isolierverglasung
  • Elektrische Raffstoren in allen Zimmern
  • Feinsteinzeug im Badezimmer und WC
  • Stilvolle und funktionale Sanitärausstattung namhafter Hersteller

Neben der sorgfältigen Planung und soliden Bauweise legen wir besonderes Augenmerk auf die Ausstattung der Wohnungen. Natürliche Materialien wie Echtholz oder Feinsteinzeug und hochwertige Sanitärausstattung namhafter Hersteller bieten wir Ihnen als Grundausstattung in verschiedenen Ausführungen und farblichen Nuancierungen an.

Unsere Berater*innen stehen Ihnen fachkundig zur Seite und zeigen Ihnen die ausgewählten Materialmuster in unserem Showroom in Lindau. Einen Einblick in unsere Grundausstattung haben wir für Sie zusammengestellt. 

Mehr Informationen

Die Bauweise

Die Gebäude werden in langlebiger Massivbauweise errichtet und mit einer hinterlüfteten Holzfassade hochwertig ausgeführt.

Die solide Bauweise ist uns als traditionelles Bauunternehmen besonders wichtig. Denn sie ist das Fundament, damit Sie lange Freude mit Ihrer Wohnung haben. Einen kurzen Überblick der Bauweise haben wir für Sie zusammengestellt.

Zertifizierte Nachhaltigkeit trifft steuerliche Attraktivität

Bis zu 10 % Abschreibung in den ersten vier Jahren– das ist aktuell einer der stärksten steuerlichen Hebel im Immobilienmarkt.

Aber: Das funktioniert nur mit KfW-40-Standard und QNG Plus-Zertifizierung.
Nur hier bekommen Sie zusätzlich zur degressiven Abschreibung 5 % Sonder-AfA in den ersten 4 Jahren on top – und heben Ihr Investment auf ein höheres Renditeniveau.

Die neue Wohnanlage in der Rickenbacher Straße in Lindau-Reutin erfüllt diese Voraussetzungen und bietet genau das, was langfristig gut vermietbar bleibt: 2- bis 4-Zimmerwohnungen in zentraler Lage, mit Tiefgarage und einem nachhaltigen Energiesystem.

Sie möchten investieren und sich bis zu 10% Abschreibung in den ersten vier Jahren und einen zinsvergünstigten KfW-Kredit in Höhe von max. 150.000, - € sichern? Dann nutzen Sie die einmalige Gelegenheit:
Denn andere QNG-zertifizierte Neubauwohnungen sind in Lindau aktuell nicht verfügbar.

Die Lage

Das Grundstück liegt in zentraler Lage in Lindau-Reutin, so sind schnell eine Vielzahl an Geschäften und Restaurants erreicht. Eingebettet in eine ruhige Wohngegend, bietet die Lage die ideale Umgebung für entspanntes Wohnen. Die Lindauer Insel, das Bodenseeufer oder das nahegelegene Österreich sind schnell erreicht und bieten das ganze Jahr über eine große Auswahl an Freizeitaktivitäten. Die Autobahnauffahrt oder das öffentliche Verkehrsnetz sind ebenfalls nur wenige Minuten entfernt.

 

In unmittelbarer Umgebung finden Sie:

  • Pfänder und Bodensee
  • Lindaupark und weitere Einkaufsmöglichkeiten
  • Internationaler Bahnhof Lindau-Reutin
  • Therme Lindau
  • Lindauer Insel
  • KiTa und Schulen

 

Download Projektexposé

Infos zum Projekt

Eckdaten
  • Zwei Häuser mit insgesamt 24 Wohnungen
  • 2-, 3- und 4-Zimmerwohnungen mit Privatgärten, Balkonen und Dachterrassen
  • Tiefgarage mit Aufzügen direkt bis vor die Wohnungseingangstüre
  • Begrünte Außenanlage mit Spielplatz
  • Geothermie und Photovoltaikanlage
  • Vorbereitung für E-Lade-Infrastruktur
  • Architektur: Feuerstein Hammer Pfeiffer, Lindau (B)
  • Energiestandard "Effizienhaus 40" nach KfW-Standard
  • QNG zertifiziert
Ausstattung
  • Echtholzparkett aus Eiche in allen Wohnräumen
  • Fußbodenheizung und -kühlung
  • Holzfensterelemente mit 3-fach-Isolierverglasung
  • Elektrische Raffstoren in allen Zimmern
  • Feinsteinzeug im Badezimmer und WC
  • Stilvolle und funktionale Sanitärausstattung namhafter Hersteller

Neben der sorgfältigen Planung und soliden Bauweise legen wir besonderes Augenmerk auf die Ausstattung der Wohnungen. Natürliche Materialien wie Echtholz oder Feinsteinzeug und hochwertige Sanitärausstattung namhafter Hersteller bieten wir Ihnen als Grundausstattung in verschiedenen Ausführungen und farblichen Nuancierungen an.

Unsere Berater*innen stehen Ihnen fachkundig zur Seite und zeigen Ihnen die ausgewählten Materialmuster in unserem Showroom in Lindau. Einen Einblick in unsere Grundausstattung haben wir für Sie zusammengestellt. 

Mehr Informationen
Bauweise

Die Gebäude werden in langlebiger Massivbauweise errichtet und mit einer hinterlüfteten Holzfassade hochwertig ausgeführt.

Die solide Bauweise ist uns als traditionelles Bauunternehmen besonders wichtig. Denn sie ist das Fundament, damit Sie lange Freude mit Ihrer Wohnung haben. Einen kurzen Überblick der Bauweise haben wir für Sie zusammengestellt.

QNG zertifiziert

Bis zu 10 % Abschreibung in den ersten vier Jahren– das ist aktuell einer der stärksten steuerlichen Hebel im Immobilienmarkt.

Aber: Das funktioniert nur mit KfW-40-Standard und QNG Plus-Zertifizierung.
Nur hier bekommen Sie zusätzlich zur degressiven Abschreibung 5 % Sonder-AfA in den ersten 4 Jahren on top – und heben Ihr Investment auf ein höheres Renditeniveau.

Die neue Wohnanlage in der Rickenbacher Straße in Lindau-Reutin erfüllt diese Voraussetzungen und bietet genau das, was langfristig gut vermietbar bleibt: 2- bis 4-Zimmerwohnungen in zentraler Lage, mit Tiefgarage und einem nachhaltigen Energiesystem.

Sie möchten investieren und sich bis zu 10% Abschreibung in den ersten vier Jahren und einen zinsvergünstigten KfW-Kredit in Höhe von max. 150.000, - € sichern? Dann nutzen Sie die einmalige Gelegenheit:
Denn andere QNG-zertifizierte Neubauwohnungen sind in Lindau aktuell nicht verfügbar.

Lage

Das Grundstück liegt in zentraler Lage in Lindau-Reutin, so sind schnell eine Vielzahl an Geschäften und Restaurants erreicht. Eingebettet in eine ruhige Wohngegend, bietet die Lage die ideale Umgebung für entspanntes Wohnen. Die Lindauer Insel, das Bodenseeufer oder das nahegelegene Österreich sind schnell erreicht und bieten das ganze Jahr über eine große Auswahl an Freizeitaktivitäten. Die Autobahnauffahrt oder das öffentliche Verkehrsnetz sind ebenfalls nur wenige Minuten entfernt.

 

In unmittelbarer Umgebung finden Sie:

  • Pfänder und Bodensee
  • Lindaupark und weitere Einkaufsmöglichkeiten
  • Internationaler Bahnhof Lindau-Reutin
  • Therme Lindau
  • Lindauer Insel
  • KiTa und Schulen