Zur Übersicht
Dornbirn | Dr. Anton-Schneider-Straße

Whg 01

Haus B | Erdgeschoss | 3 Zimmer
Grabenweg, Dornbirn-Haus B Whg B01

Allgemeine Infos

Spezifikation
Neubau (Erstbezug)
Ausführung
Barrierefrei
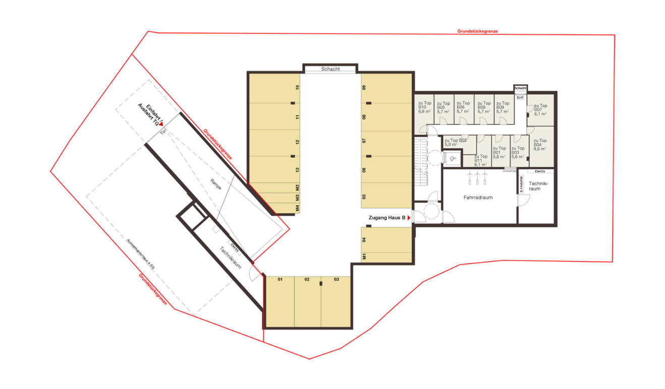
Art des Stellplatzes
Tiefgarage
Anzahl an Stellplätzen
1

Flächen im Detail

Wohnfläche
55 m2
Kochen/Wohnen/Essen
22,8 m2
Schlafzimmer
12,5 m2
Zimmer
8,5 m2
Badezimmer
4,4 m2
Gang
6 m2
Terrasse
14,5 m2
Garten
125 m2
Keller
5,6 m2

Technische Details

Heizung
Fußboden
Heizungsart
Fernwärme
Energiesystem
Photovoltaik
Heizwärmebedarf
29,72 kWh/m2a
Lift
vorhanden
Internet
Glasfaser
E-mobility ready
vorhanden
Details dieser Wohnung herunterladen
Loader

Kaufpreis Wohnung:

€ 385.000,-

zzgl. Preis pro Stellplatz

ab € 27.000,-

zzgl. Grunderwerbssteuer:

3,5 %

zzgl. Grundbucheintragung:

1,1 %

zzgl. Nebenkosten:

1,2% Vertrags- und Treuhandkosten

Wohnbauförderung:

€ 65.000,-
Nachricht senden
1

Infos zum Projekt

  • Zwei Häuser: Haus A mit Mietwohnungen, Haus B mit 11 Eigentumswohnungen
  • 2-, 3- oder 4-Zimmerwohnungen
  • alle Wohnungen verfügen über (teils überdachte) Terrassen oder Privatgärten
  • Barrierefreier Zugang: Lift in alle Geschosse
  • Tiefgarage mit Vorbereitung für E-Ladestationen
  • Außenbereich mit Spielplatz
  • Glasfaseranschluss
  • Photovoltaik‑Anlage, Fernwärmeanschluss
  • Architektur: Architekturwerkstatt Dworzak-Grabher

Hier können Sie das Exposé herunterladen:

Exposé Grabenweg Dornbirn

  • Echtholzparkett aus Eiche in allen Wohnräumen
  • Niedertemperatur-Fußbodenheizung
  • Lackierte Holzfensterelemente mit mit 3-fach-Isolierverglasung
  • Elektrische Raffstoren in allen Zimmern
  • Feinsteinzeug im Badezimmer und WC
  • Stilvolle und funktionale Sanitärausstattung namhafter Hersteller

Neben einer sorgfältigen Planung und soliden Bauweise legen wir großen Wert auf die Ausstattung unserer Wohnungen. Zum Einsatz kommen natürliche Materialien wie Echtholz und Feinsteinzeug, ergänzt durch eine hochwertige Sanitärausstattung namhafter Hersteller. Diese Elemente bilden die Grundausstattung und stehen in unterschiedlichen Ausführungen und Farbtönen zur Auswahl. 

Mehr Informationen

Die Gebäude werden in langlebiger Massivbauweise errichtet und mit einer hinterlüfteten Holzfassade hochwertig ausgeführt.

Die solide Bauweise ist uns als traditionelles Bauunternehmen besonders wichtig. Denn sie ist das Fundament, damit Sie lange Freude mit Ihrer Wohnung haben. Einen kurzen Überblick der Bauweise haben wir für Sie zusammengestellt.

Die Lage

Alle Einrichtungen des täglichen Bedarfs (Supermarkt, Bäckerei, Apotheke, Bank) sowie Restaurants, Cafés, Bars und kulturelle Angebote sind fußläufig erreichbar. Der Hauptbahnhof Dornbirn ist nur wenige Gehminuten entfernt.

Freizeit und Erholung – Zahlreiche Freizeitmöglichkeiten liegen direkt vor der Haustür: der Dornbirner Hausberg Karren mit Seilbahn und dem Wander‑/Bikegebiet Schuttannen, das Stadtbad, ein Fuß‑ und Radweg entlang der Dornbirner Ach sowie die Rappenlochschlucht und das Wandergebiet Gütle. Der Bodensee ist mit dem Fahrrad in ca. 30 Minuten erreichbar. In unmittelbarer Nähe befinden sich auch ein Fitnessstudio und eine Kletterhalle. Ein Ski‑ und Radbus verbindet die Stadt mit dem Bregenzerwald, einem großen Ski‑, Rad- und Wandergebiet.

Die Kombination aus zentraler Lage, hervorragender Infrastruktur und vielfältigen Freizeit‑ sowie Naturangeboten macht die Wohnungen besonders attraktiv für Mieter.

 

Download Projektexposé

Infos zum Projekt

Projekt
  • Zwei Häuser: Haus A mit Mietwohnungen, Haus B mit 11 Eigentumswohnungen
  • 2-, 3- oder 4-Zimmerwohnungen
  • alle Wohnungen verfügen über (teils überdachte) Terrassen oder Privatgärten
  • Barrierefreier Zugang: Lift in alle Geschosse
  • Tiefgarage mit Vorbereitung für E-Ladestationen
  • Außenbereich mit Spielplatz
  • Glasfaseranschluss
  • Photovoltaik‑Anlage, Fernwärmeanschluss
  • Architektur: Architekturwerkstatt Dworzak-Grabher

Hier können Sie das Exposé herunterladen:

Exposé Grabenweg Dornbirn

Ausstattung
  • Echtholzparkett aus Eiche in allen Wohnräumen
  • Niedertemperatur-Fußbodenheizung
  • Lackierte Holzfensterelemente mit mit 3-fach-Isolierverglasung
  • Elektrische Raffstoren in allen Zimmern
  • Feinsteinzeug im Badezimmer und WC
  • Stilvolle und funktionale Sanitärausstattung namhafter Hersteller

Neben einer sorgfältigen Planung und soliden Bauweise legen wir großen Wert auf die Ausstattung unserer Wohnungen. Zum Einsatz kommen natürliche Materialien wie Echtholz und Feinsteinzeug, ergänzt durch eine hochwertige Sanitärausstattung namhafter Hersteller. Diese Elemente bilden die Grundausstattung und stehen in unterschiedlichen Ausführungen und Farbtönen zur Auswahl. 

Mehr Informationen
Bauweise

Die Gebäude werden in langlebiger Massivbauweise errichtet und mit einer hinterlüfteten Holzfassade hochwertig ausgeführt.

Die solide Bauweise ist uns als traditionelles Bauunternehmen besonders wichtig. Denn sie ist das Fundament, damit Sie lange Freude mit Ihrer Wohnung haben. Einen kurzen Überblick der Bauweise haben wir für Sie zusammengestellt.

Lage

Alle Einrichtungen des täglichen Bedarfs (Supermarkt, Bäckerei, Apotheke, Bank) sowie Restaurants, Cafés, Bars und kulturelle Angebote sind fußläufig erreichbar. Der Hauptbahnhof Dornbirn ist nur wenige Gehminuten entfernt.

Freizeit und Erholung – Zahlreiche Freizeitmöglichkeiten liegen direkt vor der Haustür: der Dornbirner Hausberg Karren mit Seilbahn und dem Wander‑/Bikegebiet Schuttannen, das Stadtbad, ein Fuß‑ und Radweg entlang der Dornbirner Ach sowie die Rappenlochschlucht und das Wandergebiet Gütle. Der Bodensee ist mit dem Fahrrad in ca. 30 Minuten erreichbar. In unmittelbarer Nähe befinden sich auch ein Fitnessstudio und eine Kletterhalle. Ein Ski‑ und Radbus verbindet die Stadt mit dem Bregenzerwald, einem großen Ski‑, Rad- und Wandergebiet.

Die Kombination aus zentraler Lage, hervorragender Infrastruktur und vielfältigen Freizeit‑ sowie Naturangeboten macht die Wohnungen besonders attraktiv für Mieter.