Allgemeine Infos
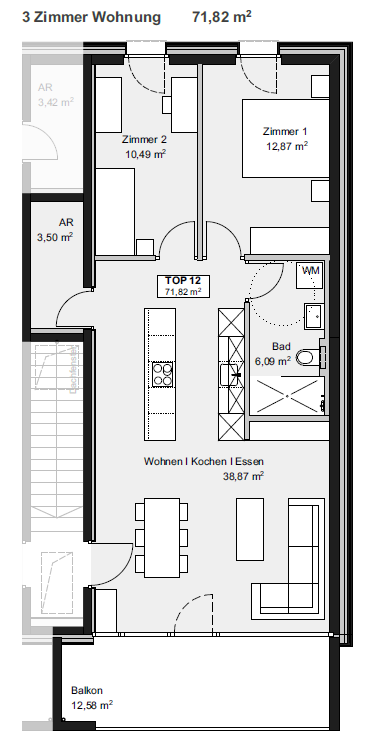
Flächen im Detail
Technische Details
Kaufpreis Wohnung:
zzgl. Preis pro Stellplatz
ab € 27.000,-zzgl. Grunderwerbssteuer:
3,5 %zzgl. Grundbucheintragung:
zzgl. Nebenkosten:
1,2% Vertrags- und TreuhandkostenWohnbauförderung:
Infos zum Projekt
Das Projekt
Die beiden Wohnhäuser D und E sind Teil des hochwertigen Wohnquartiers "Am Römerstein" und mit dem Wohnkonzept i+R wohnen pur ausgestattet.
- Zwei Wohnhäuser mit Wohnkonzept i+R wohnen pur
- Eigentumswohnungen mit 70 bis 74 m²
- Ausgebaut als 3-Zimmerwohnung mit dem Wohnkonzept i+R wohnen pur
- Geräumige Terrassen - im Erdgeschoss mit Privatgärten
- Südliche Ausrichtung mit Mittagssonne
- Parkähnliche Außenraumgestaltung mit Quartiersplatz und Spielflächen
- Naturnahes Wohnen
- Moderne Architektur: Architekt Jesco Hutter, Dornbirn
Neben den flexibel ausbaubaren Wohnungen in den Wohnhäusern D und E werden Eigentumswohnungen in verschiedenen Wohnungsgrößen in den Häusern A, B und C realisiert.
Die Bauweise
- Massivbauweise
- Lasierte, hinterlüftete Holzfassade
- Holzfenster und Rahmentüren mit 3-fach-Isolierverglasung
Die Ausstattung
- Raumhohe Türen
- Echtholz-Parkett
- Stilvolle Sanitärausstattung
- Hochwertige Fliesenauswahl
- Bodenebene Dusche inkl. Glastrennwand
- Vertikalscreen südseitig
i+R wohnen pur
Wer lieber kauft statt mietet – auch bei der ersten Wohnung – hat mit wohnen pur den perfekten Start: rund 70 Quadratmeter Raum zum Leben, Lachen und Lieben! Jede wohnen pur-Wohnung bekommst du in drei Ausbauvarianten: als Single-Loft, als zwei- oder drei-Zimmer-Wohnung. Hier kannst du nach deinen Bedürfnissen gestalten und fühlst dich als Single genauso wohl, wie als Paar oder kleine Familie.
Unser Fokus in der Entwicklung des Konzepts lag neben jungem und flexiblem Wohnraum aber auch bei den Kosten: Weglassen, auf was man als junger oder junggebliebener Mensch leicht verzichten kann, nennen wir Kostenintelligenz. Denn damit reduzieren wir nicht nur die Anschaffungskosten sondern auch die späteren Betriebskosten.
Nutze i+R wohnen pur als clevere und sichere Wertanlage – damit dir mehr fürs Leben bleibt.
Die Lage
Die Gemeinde Höchst, am Bodensee gelegen, kann mit ihrer ruhigen und naturnahen Lage als beliebtes Wohngebiet punkten. Das Rheindelta gehört zu einem der wichtigsten Vogelschutzgebiete und Feuchtgebiete Europas. Gleichzeitig stellt es ein Naturparadies dar, auf dem sich Auenwälder, Schilfbereiche und Sandbänke erstrecken. Auch das nahgelegene Bruggerloch bietet Erholung und Aktivität zugleich, egal ob beim Schwimmen, Angeln oder Relaxen – Höchst ist die ideale Wohnlage für alle, die in der Natur zu Hause sind.
Mit nur 750 Metern zur Schweizer Grenze und zahlreichen renommierten Unternehmen wie Blum, Grass oder Tecnoplast zeigt sich Höchst auch in Punkt Wirtschaft attraktiv. Die Nähe zur Landesstraße 202 sowie zur Bruggerstraße in Richtung Lustenau macht Höchst von allen Seiten gut erreichbar. Ein gut ausgebautes Radwegenetz sowie der Landbus stehen zudem zur Verfügung. Auch eine Illwerke Charing Station für e-Mobilität ist in unmittelbarer Nähe.
Download Projektexposé
Infos zum Projekt
Die beiden Wohnhäuser D und E sind Teil des hochwertigen Wohnquartiers "Am Römerstein" und mit dem Wohnkonzept i+R wohnen pur ausgestattet.
- Zwei Wohnhäuser mit Wohnkonzept i+R wohnen pur
- Eigentumswohnungen mit 70 bis 74 m²
- Ausgebaut als 3-Zimmerwohnung mit dem Wohnkonzept i+R wohnen pur
- Geräumige Terrassen - im Erdgeschoss mit Privatgärten
- Südliche Ausrichtung mit Mittagssonne
- Parkähnliche Außenraumgestaltung mit Quartiersplatz und Spielflächen
- Naturnahes Wohnen
- Moderne Architektur: Architekt Jesco Hutter, Dornbirn
Neben den flexibel ausbaubaren Wohnungen in den Wohnhäusern D und E werden Eigentumswohnungen in verschiedenen Wohnungsgrößen in den Häusern A, B und C realisiert.
- Massivbauweise
- Lasierte, hinterlüftete Holzfassade
- Holzfenster und Rahmentüren mit 3-fach-Isolierverglasung
- Raumhohe Türen
- Echtholz-Parkett
- Stilvolle Sanitärausstattung
- Hochwertige Fliesenauswahl
- Bodenebene Dusche inkl. Glastrennwand
- Vertikalscreen südseitig
Wer lieber kauft statt mietet – auch bei der ersten Wohnung – hat mit wohnen pur den perfekten Start: rund 70 Quadratmeter Raum zum Leben, Lachen und Lieben! Jede wohnen pur-Wohnung bekommst du in drei Ausbauvarianten: als Single-Loft, als zwei- oder drei-Zimmer-Wohnung. Hier kannst du nach deinen Bedürfnissen gestalten und fühlst dich als Single genauso wohl, wie als Paar oder kleine Familie.
Unser Fokus in der Entwicklung des Konzepts lag neben jungem und flexiblem Wohnraum aber auch bei den Kosten: Weglassen, auf was man als junger oder junggebliebener Mensch leicht verzichten kann, nennen wir Kostenintelligenz. Denn damit reduzieren wir nicht nur die Anschaffungskosten sondern auch die späteren Betriebskosten.
Nutze i+R wohnen pur als clevere und sichere Wertanlage – damit dir mehr fürs Leben bleibt.
Die Gemeinde Höchst, am Bodensee gelegen, kann mit ihrer ruhigen und naturnahen Lage als beliebtes Wohngebiet punkten. Das Rheindelta gehört zu einem der wichtigsten Vogelschutzgebiete und Feuchtgebiete Europas. Gleichzeitig stellt es ein Naturparadies dar, auf dem sich Auenwälder, Schilfbereiche und Sandbänke erstrecken. Auch das nahgelegene Bruggerloch bietet Erholung und Aktivität zugleich, egal ob beim Schwimmen, Angeln oder Relaxen – Höchst ist die ideale Wohnlage für alle, die in der Natur zu Hause sind.
Mit nur 750 Metern zur Schweizer Grenze und zahlreichen renommierten Unternehmen wie Blum, Grass oder Tecnoplast zeigt sich Höchst auch in Punkt Wirtschaft attraktiv. Die Nähe zur Landesstraße 202 sowie zur Bruggerstraße in Richtung Lustenau macht Höchst von allen Seiten gut erreichbar. Ein gut ausgebautes Radwegenetz sowie der Landbus stehen zudem zur Verfügung. Auch eine Illwerke Charing Station für e-Mobilität ist in unmittelbarer Nähe.
Kontakt
Die Wohnungen werden über uns oder unseren Partner im Vertrieb Gassner Immobilien in Höchst (provisionsfrei) vermittelt und verkauft.












